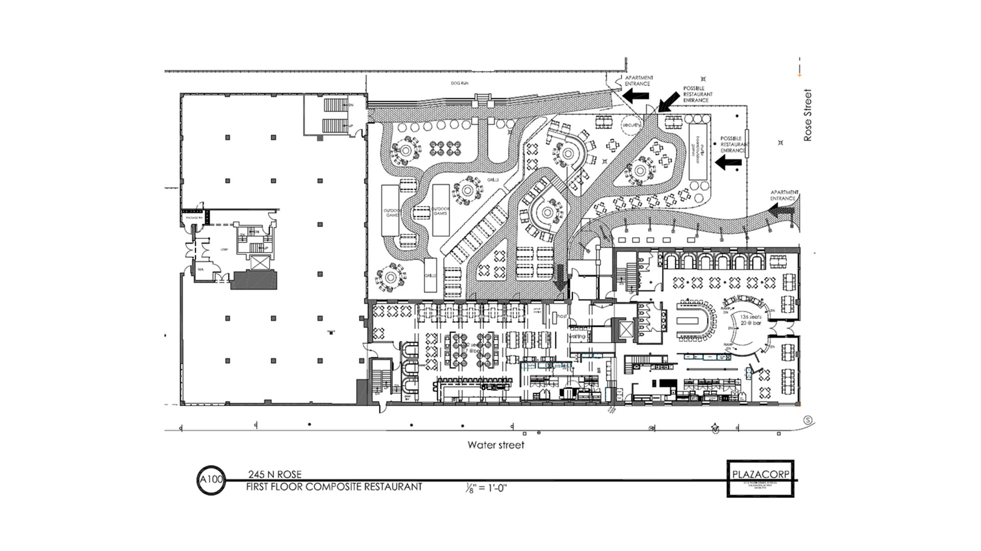
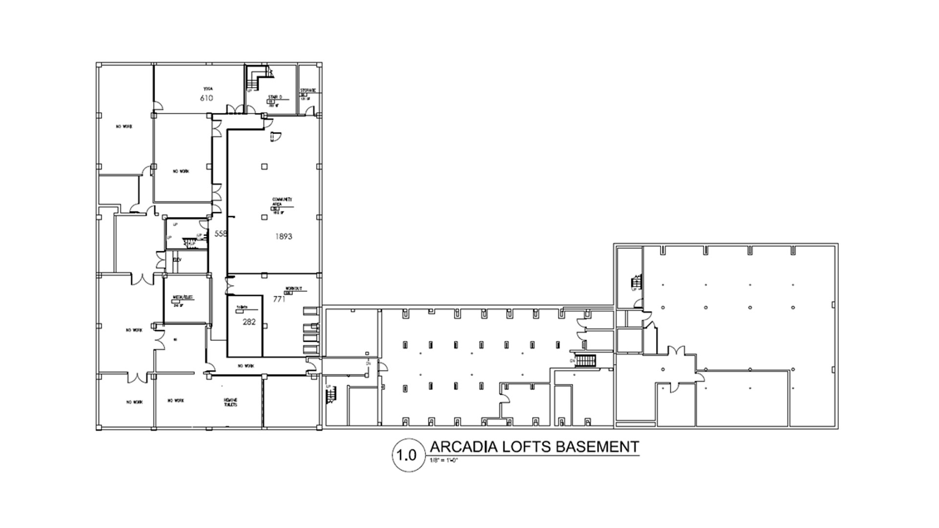
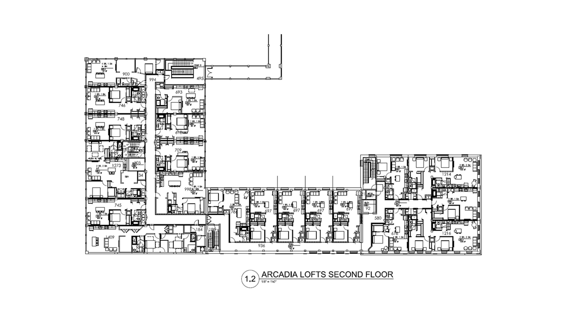
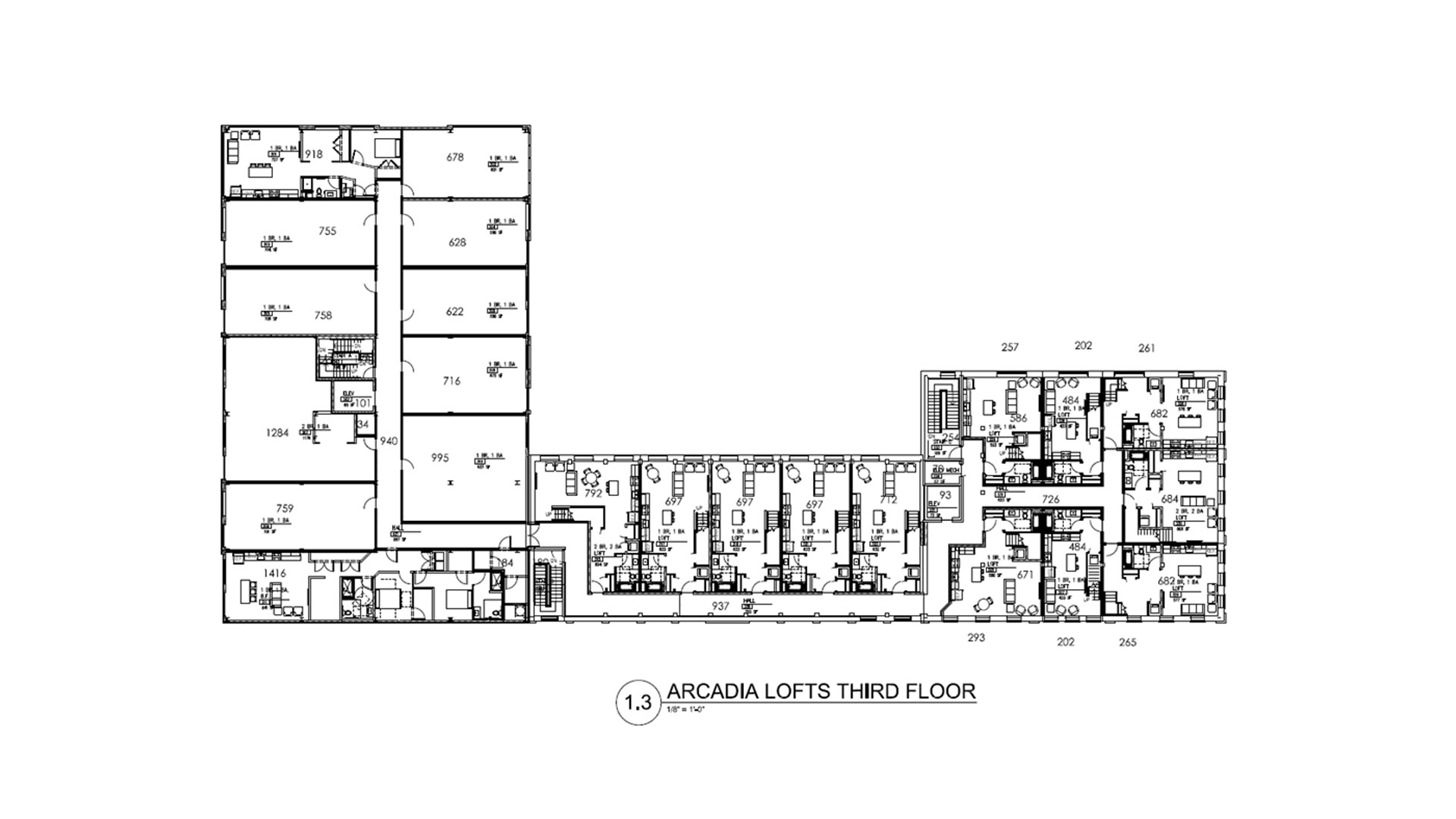
Building Specifications
Address
231 N. Rose St.
Kalamazoo, MI 49007
Number of Buildings
3
Buildings
Main, Central, and West
Current Building(s) Size
52,056 square feet
Future Building(s) Size
104,098 square feet
Years Built
1872, 1906, and 1950s











